賃料845,580円
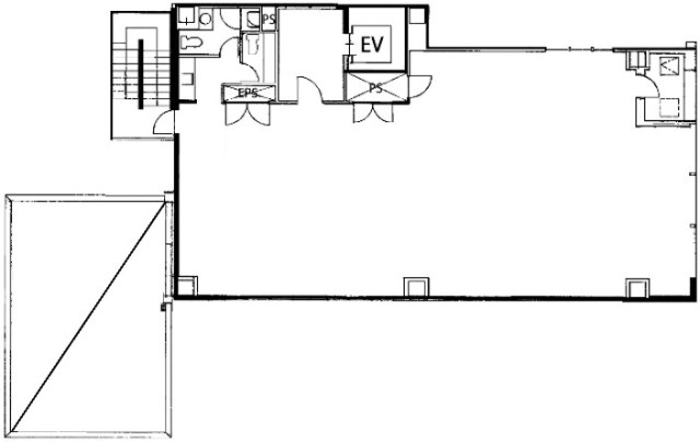
契約面積- 約49坪(161.98m²)
敷金・保証金- 8ヶ月
礼金- 無し
償却等- 償却:無 / 更新料:無
契約期間:2年
※指定保証会社との契約あり
所在地- 東京都豊島区駒込
構造規模-
鉄筋鉄骨コンクリート造
地上9階
所在階- 5階
Googleマップ
賃料845,580円
契約面積- 約49坪(161.98m²)
敷金・保証金- 8ヶ月
礼金- 無し
償却等- 償却:無 / 更新料:無
契約期間:2年
※指定保証会社との契約あり
所在地- 東京都豊島区駒込
構造規模-
鉄筋鉄骨コンクリート造
地上9階
所在階- 5階



2階
0円

お問い合わせフォーム
詳細
★東京メトロ南北線駒込駅から徒歩1分、JR山手線駒込駅から徒歩2分の好立地
★ガラス張りの外観が特徴で、本郷通りに面する
★交通の便が良く、周辺には飲食店やコンビニが充実
★来客対応や社員の利便性が高い
★OAフロア、個別空調、男女別トイレを備えた快適なオフィス環境
★事務所利用だけでなく、クリニックやスクール、サービス店舗など幅広い業種に対応可
★用途については柔軟な相談可能
アクセス良好の好立地に位置する、
豊島区、駒込エリアのオフィスです。