最寄り駅-
有楽町線 「東池袋」2分
丸ノ内線 「池袋」8分
有楽町線 「池袋」8分
池袋線 池袋」8分
JR線 「池袋」9分
副都心線「池袋」13分
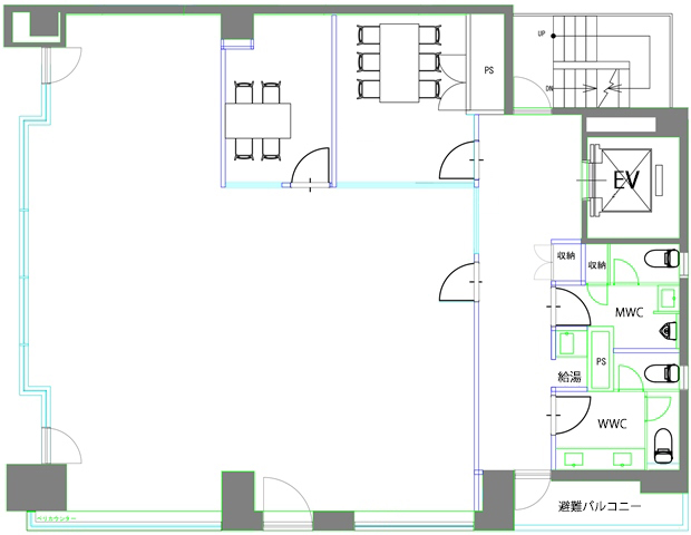
チェックポイント- #セットアップオフィス#バルコニー付き#会議室付き#礼金なし#駅5分以内
- 入居時期
- 相談
賃料1,228,000円
契約面積- 約49坪(161.98m²)
敷金・保証金- 相談
礼金- 無し
償却等- 償却:無 / 更新料:無
※指定保証会社との契約で
敷金無しプラン相談可能
所在地- 豊島区南池袋2
構造規模-
鉄骨造
地下1階 地上8階
所在階- 6階
Googleマップ
最寄り駅-
有楽町線 「東池袋」2分
丸ノ内線 「池袋」8分
有楽町線 「池袋」8分
池袋線 池袋」8分
JR線 「池袋」9分
副都心線「池袋」13分
チェックポイント- #セットアップオフィス#バルコニー付き#会議室付き#礼金なし#駅5分以内
- 入居時期/
- 相談
賃料1,228,000円
契約面積- 約49坪(161.98m²)
敷金・保証金- 相談
礼金- 無し
償却等- 償却:無 / 更新料:無
※指定保証会社との契約で
敷金無しプラン相談可能
所在地- 豊島区南池袋2
構造規模-
鉄骨造
地下1階 地上8階
所在階- 6階




5階
0円

お問い合わせフォーム
詳細
★ 有楽町線「東池袋駅」徒歩2分の好立地
★ サンシャインシティや豊島区役所至近、利便性抜群
★ 池袋駅方面には飲食店・銀行・郵便局多数、日常利便性◎
★会議室2室・男女別トイレ設置
★ 南池袋公園など憩いの場も多く快適なビジネス環境
★指定保証会社との契約で敷金無しプランも相談可能
繁華街から少し離れた落ち着いた環境にある
豊島区、池袋エリアのセットアップオフィスです。