【新宿区】飯田橋_会議室・テレカン・ラウンジ完備。多様な働き方に応えるセットアップオフィス

問い合わせ番号:38515

1 / 8 ラウンジ

2 / 8 ワークスペース

3 / 8 ワークスペース

4 / 8 会議室

5 / 8 ラウンジ

6 / 8 ラウンジ

7 / 8 水回り

8 / 8 外観

建物画像
建物画像
建物画像
建物画像
建物画像
建物画像
建物画像
建物画像

詳細

★千代田区と新宿区に跨る飯田橋エリアの立地

★約100坪前後のデザイナーズセットアップオフィス

★複数路線利用可能な【飯田橋駅】が最寄り駅

★社員だけでなく、来訪者にとっても便利な立地

★受付・執務室・会議室・テレカンブース・ラウンジ・打合せスペース設置

★自由度高く働ける空間

★執務室を除きオフィス家具も設置した状態でお引渡し

★内装工事期間を圧縮でき、スピード感をもって業務を開始可能

★デザイン性の高い物件はリクルートにも強く、採用に力を入れたい企業にオススメ

新宿区、新小川町エリアのセットアップオフィスです。

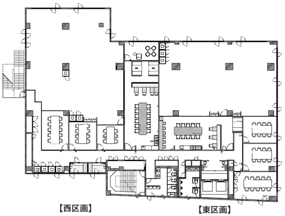
図面

最寄り駅
有楽町線 飯田橋駅 7分
大江戸線 飯田橋駅 7分
南北線 飯田橋駅 8分
東西線 飯田橋駅 9分
中央線 飯田橋駅 10分
チェックポイント
#セットアップオフィス#デザイナーズ#テレカンブース付き#リノベーション済み#会議室付き#大型#礼金なし
入居時期
即日
賃料

2,908,000

契約面積
約116坪(383.47m²)
敷金・保証金
8ヶ月
礼金
無し
償却等
償却:無 / 更新料:無
契約期間:2年
※指定保証会社との契約あり
※指定清掃会社との契約あり
所在地
東京都新宿区新小川町
構造規模
鉄筋コンクリート造
地下2階 地上4階
所在階
2階東区画

Googleマップ

最寄り駅
有楽町線 飯田橋駅 7分
大江戸線 飯田橋駅 7分
南北線 飯田橋駅 8分
東西線 飯田橋駅 9分
中央線 飯田橋駅 10分
チェックポイント
#セットアップオフィス#デザイナーズ#テレカンブース付き#リノベーション済み#会議室付き#大型#礼金なし
入居時期/
即日
賃料

2,908,000

契約面積
約116坪(383.47m²)
敷金・保証金
8ヶ月
礼金
無し
償却等
償却:無 / 更新料:無
契約期間:2年
※指定保証会社との契約あり
※指定清掃会社との契約あり
所在地
東京都新宿区新小川町
構造規模
鉄筋コンクリート造
地下2階 地上4階
所在階
2階東区画

エリアを選択してください(複数選択可)

広さを選択してください(単一選択)

特徴・設備を選択してください(複数選択可)

月額賃料を選択してください(単一選択)

エリア: 未選択
広さ: すべて
特徴: 未選択
賃料: すべて