成約済み 【渋谷区】恵比寿_会議室2室+ブース完備。打合せの多い企業に最適な居抜きオフィス

問い合わせ番号:26866

1 / 7 人気の恵比寿エリアの居抜きオフィス_会議室

2 / 7 会議室は2室付き

3 / 7 癒しの緑が心地よいオフィス_エレベーターホール

4 / 7 グリーンカラーをベースとした居抜きオフィス_エントランス

5 / 7 お問い合わせはお早めに_執務室

6 / 7 テレカンブース

7 / 7 人気の恵比寿エリア_外観

建物画像
建物画像
建物画像
建物画像
建物画像
建物画像
建物画像

詳細

★ 恵比寿駅徒歩3分、代官山も徒歩圏の人気エリア
★ 恵比寿西の五差路近く、飲食店が豊富で利便性抜群
★ 1フロア1テナント仕様でセキュリティ安心
★ グリーンを基調とした居抜きオフィスデザイン
★ おしゃれな会議室2室・テレカンブース完備
★ シンプルな執務室に黒のライティングレールが映える快適空間
★ 12~14席収容可能、会議スペースを多用する企業に最適
★ 現テナント入居中につき、詳細はお問い合わせください

 

移転コストを抑えつつスピーディに入居可能。

会議室2室付きで使い勝手抜群、オフィス検索ネットおすすめの、
内装付きのおしゃれな居抜きオフィスです。

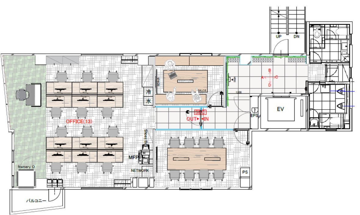
図面

最寄り駅
JR線「恵比寿」3分
日比谷線「恵比寿」3分
東横線「代官山」7分
チェックポイント
#居抜きオフィス#デザイナーズ#会議室付き#バルコニー付き#駅5分以内#礼金なし#スタッフおすすめ
入居時期
即入居可能
賃料
ASK
契約面積
約37坪(122.31m²)
敷金・保証金
相談
礼金
無し
償却等
※詳細はお問合せ下さい
所在地
渋谷区恵比寿西1
構造規模
鉄筋鉄骨コンクリート造
地下1階 地上8階

Googleマップ

最寄り駅
JR線「恵比寿」3分
日比谷線「恵比寿」3分
東横線「代官山」7分
チェックポイント
#居抜きオフィス#デザイナーズ#会議室付き#バルコニー付き#駅5分以内#礼金なし#スタッフおすすめ
入居時期/
即入居可能
賃料
ASK
契約面積
約37坪(122.31m²)
敷金・保証金
相談
礼金
無し
償却等
※詳細はお問合せ下さい
所在地
渋谷区恵比寿西1
構造規模
鉄筋鉄骨コンクリート造
地下1階 地上8階

エリアを選択してください(複数選択可)

広さを選択してください(単一選択)

特徴・設備を選択してください(複数選択可)

月額賃料を選択してください(単一選択)

エリア: 未選択
広さ: すべて
特徴: 未選択
賃料: すべて