【渋谷区】外苑前_デザイナーズ仕様で暮らしも仕事もスタイリッシュに!人気エリアの希少なメゾネットオフィス
問い合わせ番号:26538
最寄り駅-
銀座線「外苑前」8分
千代田線「明治神宮前」8分
副都心線「明治神宮前」8分
半蔵門線「表参道」10分
JR線「原宿」13分
半蔵門線「原宿」13分
副都心線「北参道」14分
- 入居時期
- 2024年4月予定
賃料270,000円
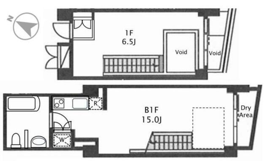
契約面積- 約16坪(52.89m²)
敷金・保証金- 4ヶ月
礼金- 1ヶ月ヶ月
償却等- 償却:無し / 再契約料:1ヶ月
所在地- 渋谷区神宮前3
構造規模-
鉄筋コンクリート造
地下1階 地上1階
Googleマップ
最寄り駅-
銀座線「外苑前」8分
千代田線「明治神宮前」8分
副都心線「明治神宮前」8分
半蔵門線「表参道」10分
JR線「原宿」13分
半蔵門線「原宿」13分
副都心線「北参道」14分
- 入居時期/
- 2024年4月予定
賃料270,000円
契約面積- 約16坪(52.89m²)
敷金・保証金- 4ヶ月
礼金- 1ヶ月ヶ月
償却等- 償却:無し / 再契約料:1ヶ月
所在地- 渋谷区神宮前3
構造規模-
鉄筋コンクリート造
地下1階 地上1階





3階301号室
900,000円
050-5538-0621
お問い合わせフォーム
詳細
★ 原宿・表参道・明治神宮前駅が利用できる便利な立地
★ ファッションや最新トレンドが集まる人気エリア
★ 郵便局まで徒歩4分で利便性良好
★ 希少なメゾネットタイプの角部屋住戸
★ 1階~地下1階に吹き抜けあり、ドライエリア付き
★ デザイナーズ物件でSOHO利用にも最適
★ 自転車置き場あり
おしゃれな立地と希少なメゾネット仕様が魅力の
希少なメゾネットタイプのデザイナーズオフィスです。