成約済み 【渋谷区】渋谷_スマートロック導入で安心のセキュリティ!閑静な立地と高機能性を備えた新築賃貸オフィス

問い合わせ番号:26294

1 / 6 渋谷の新築賃貸オフィス_屋上テラス

2 / 6 天井高約3.5mの開放感_執務室

3 / 6 水回り

4 / 6 スマートロック導入済み_ビルエントランス

5 / 6 外観

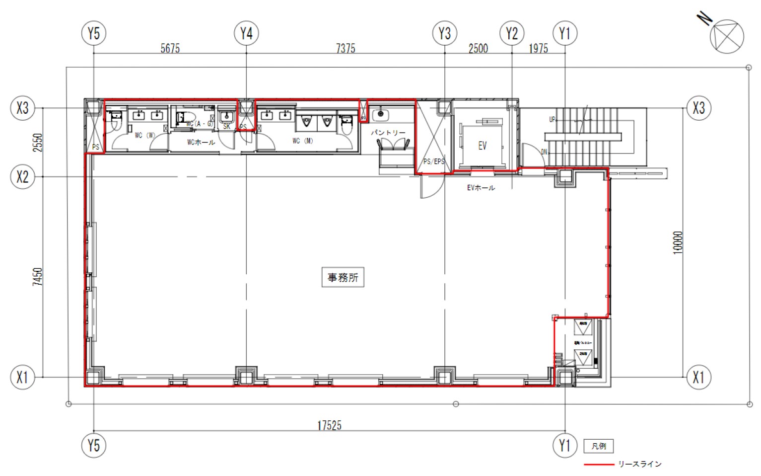
6 / 6 参考レイアウト

建物画像
建物画像
建物画像
建物画像
建物画像
建物画像

詳細

★ 渋谷駅徒歩7分、渋谷と表参道の中間地点の好立地
★ 青山通りから一本入った閑静な環境
★ 2023年竣工の新築オフィス、スマートロック導入で安心
★ 天井高3,500mmの開放感あふれる室内空間
★ 多目的利用やリフレッシュに最適な屋上テラス付き

 

再開発が進む人気の渋谷エリアで快適に働ける

渋谷区の新築賃貸オフィスです。

図面

最寄り駅
JR線「渋谷」7分
銀座線「渋谷」7分
半蔵門線「渋谷」7分
副都心線他「渋谷」7分
千代田線「表参道」9分
チェックポイント
#バルコニー付き#大型#敷金なし#新築・築浅#礼金なし
入居時期
即入居可能
賃料

1,914,850

契約面積
約55坪(181.82m²)
敷金・保証金
ASK
礼金
無し
所在地
渋谷区渋谷1
構造規模
鉄骨造
地上6階
所在階
複数フロア募集

Googleマップ

最寄り駅
JR線「渋谷」7分
銀座線「渋谷」7分
半蔵門線「渋谷」7分
副都心線他「渋谷」7分
千代田線「表参道」9分
チェックポイント
#バルコニー付き#大型#敷金なし#新築・築浅#礼金なし
入居時期/
即入居可能
賃料

1,914,850

契約面積
約55坪(181.82m²)
敷金・保証金
ASK
礼金
無し
所在地
渋谷区渋谷1
構造規模
鉄骨造
地上6階
所在階
複数フロア募集

エリアを選択してください(複数選択可)

広さを選択してください(単一選択)

特徴・設備を選択してください(複数選択可)

月額賃料を選択してください(単一選択)

エリア: 未選択
広さ: すべて
特徴: 未選択
賃料: すべて