最寄り駅-
三田線「御成門」4分
浅草線「大門」6分
JR線「新橋」8分
大江戸線「汐留」9分
銀座線「新橋」10分
- 入居時期
- 2026年2月下旬予定
賃料450,000円
契約面積- 約18坪(59.50m²)
敷金・保証金- 4ヶ月
礼金- 無し
償却等- 償却:無 / 更新料:無
※指定保証会社との契約あり
所在地- 港区新橋6
構造規模-
鉄筋鉄骨コンクリート造
地上7階
所在階- 1階
Googleマップ
最寄り駅-
三田線「御成門」4分
浅草線「大門」6分
JR線「新橋」8分
大江戸線「汐留」9分
銀座線「新橋」10分
- 入居時期/
- 2026年2月下旬予定
賃料450,000円
契約面積- 約18坪(59.50m²)
敷金・保証金- 4ヶ月
礼金- 無し
償却等- 償却:無 / 更新料:無
※指定保証会社との契約あり
所在地- 港区新橋6
構造規模-
鉄筋鉄骨コンクリート造
地上7階
所在階- 1階




10階
503,880円

お問い合わせフォーム
詳細
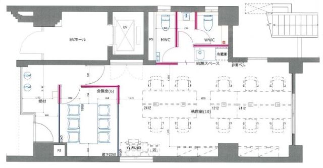
★ 2021年2月外観・エントランス・共用部をリニューアル済み
★ 芝公園・大門・東京タワーが近く、緑に囲まれた落ち着いた環境
★ レンガ通り・新虎通りにも近く、飲食店が多くランチ環境も充実
★ 内装造作付きのセットアップオフィス
★ 受付スペース・6名用会議室・男女別トイレ設置
→会議室は什器設置済み
★ 清潔感あるエントランスと機能的な室内で快適に利用可能
落ち着いた街並みと機能美が融合した、
港区、御成門エリアのセットアップオフィスです。