最寄り駅-
大江戸線 「赤羽橋」3分
三田線 「芝公園」5分
浅草線 「三田」10分
三田線 「三田」10分
大江戸線 「大門」15分
- 入居時期
- 即入居可能
賃料- ASK
契約面積- 約123坪(406.61m²)
敷金・保証金- 6ヶ月
礼金- 無し
償却等- 償却:無 / 更新料:無
※指定保証会社との契約あり
→締結いただかない場合、
敷金は賃料の12ヶ月分
所在地- 港区芝大門3
構造規模-
鉄筋鉄骨コンクリート造
地下2階 地上12階
所在階- 7階
Googleマップ
最寄り駅-
大江戸線 「赤羽橋」3分
三田線 「芝公園」5分
浅草線 「三田」10分
三田線 「三田」10分
大江戸線 「大門」15分
- 入居時期/
- 即入居可能
賃料- ASK
契約面積- 約123坪(406.61m²)
敷金・保証金- 6ヶ月
礼金- 無し
償却等- 償却:無 / 更新料:無
※指定保証会社との契約あり
→締結いただかない場合、
敷金は賃料の12ヶ月分
所在地- 港区芝大門3
構造規模-
鉄筋鉄骨コンクリート造
地下2階 地上12階
所在階- 7階



7階
3,426,740円

お問い合わせフォーム
詳細
★大江戸線「赤羽橋駅」徒歩3分の好立地
★大手設計事務所「ゲンスラー」監修のリノベーション物件
★東京タワーをモチーフにした赤と白の特徴的なデザイン意匠
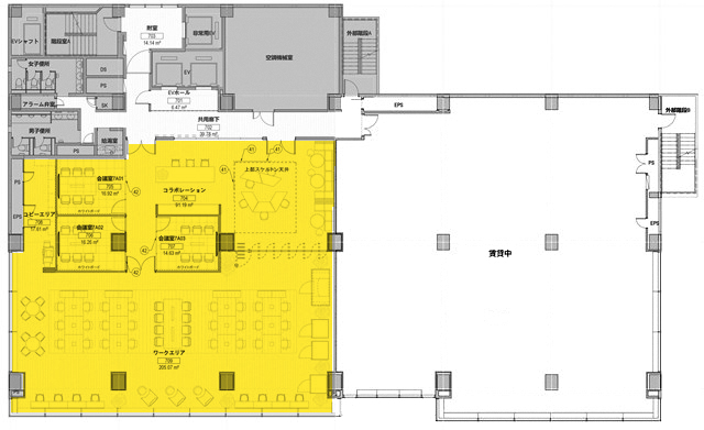
★会議室・テレカンブース・男女別トイレ設置
★執務室は30~40名の利用を想定
★窓面からは緑を眺められる開放的な環境
★ 落ち着いた雰囲気の室内で快適なオフィスワークを実現
東京タワーを間近で感じながら働く、
港区、赤羽橋エリアのセットアップオフィスです。