成約済み 【港区】内幸町_内幸町駅徒歩1分!駐車場や分割利用も相談可能、柔軟性に富んだオフィス(プロモーション中)

問い合わせ番号:26413

1 / 8 ワークスペース

2 / 8 ワークスペース

3 / 8 男女別トイレ

4 / 8 水回り

5 / 8 廊下

6 / 8 エレベーターホール

7 / 8 エントランス

8 / 8 外観

建物画像
建物画像
建物画像
建物画像
建物画像
建物画像
建物画像
建物画像

詳細

★ 新橋駅をはじめ複数路線利用可能な好立地
★ 最寄り「三田駅」A1出口から徒歩1分の利便性
★ 美味しい飲食店が豊富で働きやすいエリア
★ 日比谷通り沿いで視認性良好
★ 指定保証会社利用で敷金0可能、移転コスト削減
★ 南側・西側の二面採光で明るいオフィス
★ 長期フリーレントキャンペーン実施中(詳細はお問い合わせください)
★ 分割利用や駐車場相談も可能

 

最寄り1分&敷金0可能が魅力、キャンペーン実施中の新橋・三田エリア賃貸オフィスです。

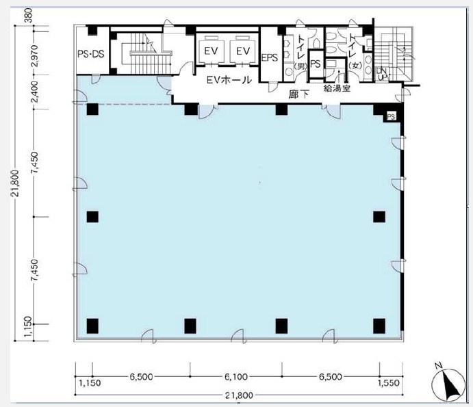
図面

最寄り駅
三田線「内幸町」1分
JR線「新橋」4分
銀座線「新橋」4分
浅草線「新橋」4分
ゆりかもめ「新橋」4分
日比谷線「霞ヶ関」9分
丸ノ内線「霞ヶ関」9分
千代田線「霞ヶ関」9分
大江戸線「汐留」13分
チェックポイント
#駅5分以内#礼金なし#大型#スタッフおすすめ
入居時期
即入居可能
賃料
ASK
契約面積
約112坪(370.25m²)
敷金・保証金
12ヶ月
礼金
無し
償却等
※敷金0は指定保証会社加入
所在地
港区新橋2
構造規模
鉄筋鉄骨コンクリート造
地下1階 地上7階
所在階
4階

Googleマップ

最寄り駅
三田線「内幸町」1分
JR線「新橋」4分
銀座線「新橋」4分
浅草線「新橋」4分
ゆりかもめ「新橋」4分
日比谷線「霞ヶ関」9分
丸ノ内線「霞ヶ関」9分
千代田線「霞ヶ関」9分
大江戸線「汐留」13分
チェックポイント
#駅5分以内#礼金なし#大型#スタッフおすすめ
入居時期/
即入居可能
賃料
ASK
契約面積
約112坪(370.25m²)
敷金・保証金
12ヶ月
礼金
無し
償却等
※敷金0は指定保証会社加入
所在地
港区新橋2
構造規模
鉄筋鉄骨コンクリート造
地下1階 地上7階
所在階
4階

エリアを選択してください(複数選択可)

広さを選択してください(単一選択)

特徴・設備を選択してください(複数選択可)

月額賃料を選択してください(単一選択)

エリア: 未選択
広さ: すべて
特徴: 未選択
賃料: すべて