【中央区】馬喰横山_執務と会議を明確に切り替えられる、計算されたオフィス

問い合わせ番号:35911

1 / 1 外観

建物画像

詳細

★周辺にはオン・オフ問わず楽しめるランチスポットが多数
★落ち着いたオフィス環境
★2020年12月エントランスおよびEVホールのリニューアル工事完了
★清潔感のあるオフィス
★3面採光の明るい空間
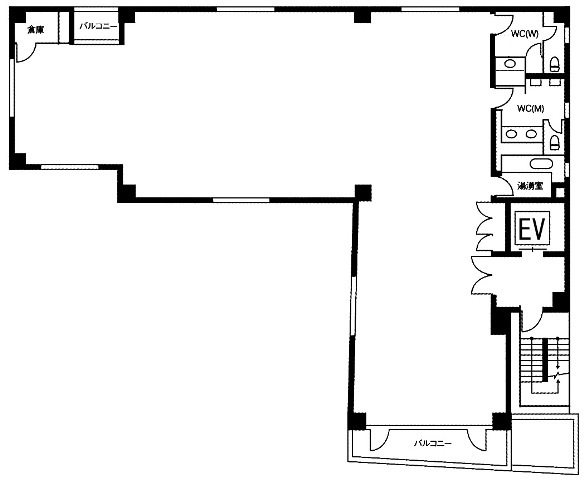
★L字形状により基準階はバルコニー側に会議室やリフレッシュスペースを設置
★執務室との動線がしっかりと分かれている
★建物内には共用トイレや自動販売機が設置され、館内テナントが自由に利用可能

閑静で働きやすい落ち着いたオフィス環境の、
中央区、馬喰横山エリアのオフィスです。

図面

最寄り駅
新宿線 馬喰横山駅 4分
浅草線 人形町駅 5分
浅草線 東日本橋駅 5分
日比谷線 人形町駅 6分
日比谷線 小伝馬町駅 7分
チェックポイント
#バルコニー付き#リノベーション済み#礼金なし#駅5分以内
入居時期
2026年6月上旬予定
賃料

1,091,200

契約面積
約68坪(224.79m²)
敷金・保証金
8ヶ月
礼金
無し
償却等
償却:無 / 更新料:無
契約期間:2年
※居抜き相談可能
※指定保証会社との契約あり
→ご利用で敷金なし相談可
所在地
東京都中央区日本橋富沢町
構造規模
鉄骨造
地下1階 地上8階
所在階
2階

Googleマップ

最寄り駅
新宿線 馬喰横山駅 4分
浅草線 人形町駅 5分
浅草線 東日本橋駅 5分
日比谷線 人形町駅 6分
日比谷線 小伝馬町駅 7分
チェックポイント
#バルコニー付き#リノベーション済み#礼金なし#駅5分以内
入居時期/
2026年6月上旬予定
賃料

1,091,200

契約面積
約68坪(224.79m²)
敷金・保証金
8ヶ月
礼金
無し
償却等
償却:無 / 更新料:無
契約期間:2年
※居抜き相談可能
※指定保証会社との契約あり
→ご利用で敷金なし相談可
所在地
東京都中央区日本橋富沢町
構造規模
鉄骨造
地下1階 地上8階
所在階
2階

エリアを選択してください(複数選択可)

広さを選択してください(単一選択)

特徴・設備を選択してください(複数選択可)

月額賃料を選択してください(単一選択)

エリア: 未選択
広さ: すべて
特徴: 未選択
賃料: すべて