最寄り駅-
日比谷線 「小伝馬町」3分
JR線 「馬喰町」5分
新宿線 「馬喰横山」5分
浅草線 「東日本橋」5分
新宿線 「岩本町」7分
- 入居時期
- 2025年12月下旬予定
賃料1,064,160円
契約面積- 約44坪(145.45m²)
敷金・保証金- 6ヶ月
礼金- 無し
償却等- 償却:無 / 更新料:無
※指定保証会社との契約あり
※指定清掃会社との契約あり
※ゴミ処理費:月額5,000円
所在地- 中央区日本橋小伝馬町
構造規模-
鉄筋コンクリート造
地下1階 地上7階
所在階- 5階
Googleマップ
最寄り駅-
日比谷線 「小伝馬町」3分
JR線 「馬喰町」5分
新宿線 「馬喰横山」5分
浅草線 「東日本橋」5分
新宿線 「岩本町」7分
- 入居時期/
- 2025年12月下旬予定
賃料1,064,160円
契約面積- 約44坪(145.45m²)
敷金・保証金- 6ヶ月
礼金- 無し
償却等- 償却:無 / 更新料:無
※指定保証会社との契約あり
※指定清掃会社との契約あり
※ゴミ処理費:月額5,000円
所在地- 中央区日本橋小伝馬町
構造規模-
鉄筋コンクリート造
地下1階 地上7階
所在階- 5階




6階
999,810円

お問い合わせフォーム
詳細
★2025年12月下旬、貸室内リニューアル工事完了予定
★2025年10月下旬、エントランスリニューアル完了予定
→ グレー基調のスタイリッシュな外観に生まれ変わる
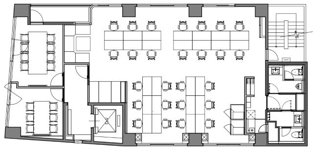
★ 会議室×2、ソファ席×2、テレカンブース×2を設置予定
→ 同時に6か所で打ち合わせ可能、来客・会議の多い企業に最適
★ 約25名分のデスク・チェアを設置予定、すぐに業務開始可能
★ 再開発で注目を集める日本橋エリアに隣接、「日本橋イースト」の立地
★ おしゃれなカフェや飲食店が多数、仕事の合間も楽しめる環境
打合せ・会議が多い企業様にピッタリの機能性重視。
快適で効率的なワークスタイルを実現できる、
中央区、小伝馬町エリアのセットアップオフィスです。