成約済み 【中央区】茅場町_即戦力オフィス!企業のブランド力を高めるデザイナーズセットアップオフィス
問い合わせ番号:28984
最寄り駅-
日比谷線・東西線「茅場町」5分
JR京葉線「八丁堀」6分
半蔵門線「水天宮前駅」10分
銀座線・浅草線「日本橋」13分
- 入居時期
- 相談
賃料922,760円
契約面積- 約40坪(132.23m²)
敷金・保証金- 5ヶ月
礼金- 無し
償却等- 償却:無し / 更新料:無し
所在地- 中央区新川1
構造規模-
鉄筋コンクリート造
地下1階 地上5階
所在階- 3階












4階
820,300円
050-5538-0621
お問い合わせフォーム
詳細
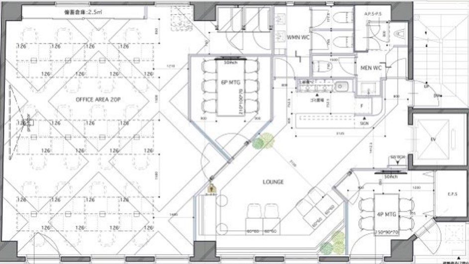
★新川エリアに位置するラグジュアリーなセットアップオフィス
★エントランス・外観をリニューアル済み
★1フロア1テナント仕様で安心のセキュリティ
★スケルトン天井による開放感ある執務空間
★受付・ラウンジ・男女別トイレを完備
★什器(机・イス等)付きで入居後すぐに利用可能
★テレカンブース2台設置で利便性も高い
オフィス検索ネットおすすめ、
茅場町、八丁堀エリアのフルセットアップオフィスです。