成約済み 【中央区】人形町_清洲橋通り沿い、高級感溢れるセットアップ区画(プロモーション中)
問い合わせ番号:28155
最寄り駅-
新宿線「浜町」4分
浅草線・日比谷線「人形町」5分
総武本線 「馬喰町」8分
半蔵門線「水天宮前」10分
総武線「浅草橋」13分
- 入居時期
- 即入居可能
賃料628,560円
契約面積- 約26坪(85.95m²)
敷金・保証金- 相談
礼金- 無し
償却等- 更新料:無し / 償却:無し
※敷金0は指定保証会社利用
所在地- 中央区日本橋久松町
構造規模-
鉄筋鉄骨コンクリート造
地下1階 地上9階
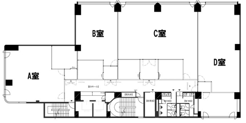
所在階- B室
















4階
820,300円
050-5538-0621
お問い合わせフォーム
詳細
★新宿線・浅草線・日比谷線・総武線など複数路線が利用可能
→浜町駅と人形町駅のちょうど中間に位置する便利な立地
★東京駅へもスムーズにアクセスでき、新幹線や空港利用にも適したエリア
★清洲橋通り沿いの視認性抜群な大型ビル内(希少な20坪台区画)
★エントランスを入ると上品なラウンジがあり、来訪者にも好印象
★受付・会議室完備、共用部には男女別トイレや給湯スペースを設置
★高天井の明るく開放的な執務室で快適に働ける環境
★敷金0相談可、さらに長期フリーレントキャンペーン実施中
希少な小規模区画を備えた大型ビルで、コストを抑えつつハイグレードな
浜町、人形町エリアのセットアップオフィスです。