最寄り駅-
新宿線「馬喰横山」3分
浅草線「東日本橋」3分
JR線「馬喰町」6分
日比谷線「人形町」7分
日比谷線「小伝馬町」7分
半蔵門線「水天宮前」12分
JR線「浅草橋」13分
- 入居時期
- 2024年11月予定
賃料691,380円
契約面積- 約30坪(99.17m²)
敷金・保証金- 6ヶ月
礼金- 無し
償却等- 更新料:無し / 償却:無し
※機械警備料 月額1.5万円
※敷金0は保証会社利用
所在地- 中央区日本橋富沢町
構造規模-
鉄骨造
地上10階
所在階- 8階










4階
820,300円

お問い合わせフォーム
詳細
★新宿線・浅草線・日比谷線・総武線など複数路線利用可でアクセス良好
→東京駅や羽田・成田空港の利用にも便利
★周辺にはおしゃれなカフェが点在し、働きやすい落ち着いた環境
★築浅のスタイリッシュな外観で来訪者や採用にも好印象
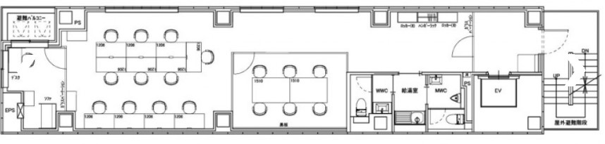
★安心のセキュリティ体制を備えた1フロア1テナント仕様
★男女別トイレ・会議室完備、家具も揃った機能的な空間
★スケルトン天井で天井高を確保し、明るく開放感のある室内
★敷金0相談可能、什器付きのフルセットアップオフィス
★長期フリーレントキャンペーン中(詳細はお問い合わせください)
入居コストを抑えつつ快適な空間を確保できる、
スタートアップや成長企業に最適な
東日本橋、小伝馬町エリアのフルセットアップオフィスです。