成約済み 【中央区】八丁堀_八丁堀駅1分!ホテルライクなエントランスが魅力の居抜きオフィス
問い合わせ番号:27675
最寄り駅-
JR京葉線・日比谷線「八丁堀」1分
東西線・日比谷線「茅場町」6分
浅草線「宝町」11分
有楽町線「新富町」12分
銀座線「京橋」13分
JR線「東京」18分
- 入居時期
- 相談
賃料1,182,600円
契約面積- 約66坪(218.18m²)
敷金・保証金- 相談
礼金- 無し
償却等- 更新料:無し / 償却:無し
所在地- 中央区八丁堀3
構造規模-
鉄筋鉄骨コンクリート造
地上8階
所在階- 5階




5階
1,515,700円
050-5538-0621
お問い合わせフォーム
詳細
★「八丁堀駅」徒歩1分、複数路線が利用可能な好立地
★銀座や東京駅も徒歩圏内でアクセス良好
★外観・エントランスを大規模リニューアル済み
→ホテルライクな高級感のあるエントランス空間
★安心の1フロア1テナント仕様でセキュリティ面も安心
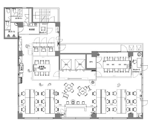
★約60坪、会議室2室+ブース5室付きの居抜きオフィス
利便性とデザイン性を兼ね備えた、
八丁堀、茅場町エリアの希少な居抜きオフィスです。