成約済み 【中央区】八丁堀_会議室3室・ラウンジ・ブース完備で機能充実なセットアップオフィス
問い合わせ番号:24778
最寄り駅-
JR京葉線・日比谷線「八丁堀」1分
東西線「茅場町」2分
浅草線「宝町」7分
有楽町線「新富町」10分
銀座線「京橋」12分
JR線「東京」17分
- 入居時期
- 即入居可能
賃料- ASK
契約面積- 約146坪(482.64m²)
敷金・保証金- 6ヶ月
礼金- 無し
所在地- 中央区八丁堀2
構造規模-
鉄筋鉄骨コンクリート造
地下1階 地上9階
所在階- 5
















4階
5,510,400円
050-5538-0621
お問い合わせフォーム
詳細
★ 八丁堀駅徒歩1分、10分圏内で5路線利用可能
★ 東京駅も徒歩圏でアクセス抜群
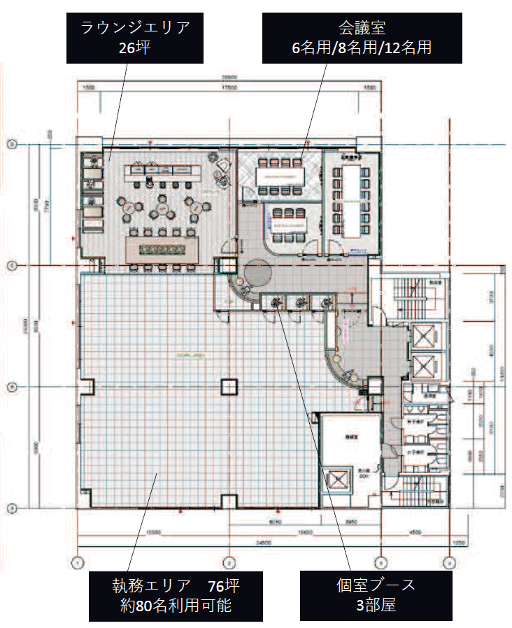
★ 大規模リニューアル済み、希少な100坪超セットアップオフィス
★ 新大橋通り沿いで視認性良好
★ 雰囲気の良いエントランス&デザイン性の高い室内
★ 会議室×3・ラウンジ・フォンブース・ファミレスブース完備
★ 約80名収容可能で社員が喜ぶお洒落な空間
★ 敷金が手軽で移転しやすい条件
中央区、八丁堀エリアのセットアップオフィスです。