最寄り駅-
有楽町線 飯田橋駅 1分
東西線 飯田橋駅 1分
南北線 飯田橋駅 1分
大江戸線 飯田橋駅 1分
中央線 飯田橋駅 3分
- 入居時期
- 2026年9月26日予定
賃料476,280円
契約面積- 約17坪(56.20m²)
敷金・保証金- 4ヶ月
礼金- 無し
償却等- 償却:無 / 更新料:無
契約期間:2年
※指定保証会社との契約あり
※指定清掃会社との契約あり
所在地- 東京都千代田区飯田橋
構造規模-
鉄骨造
地上9階
所在階- 3階
Googleマップ
最寄り駅-
有楽町線 飯田橋駅 1分
東西線 飯田橋駅 1分
南北線 飯田橋駅 1分
大江戸線 飯田橋駅 1分
中央線 飯田橋駅 3分
- 入居時期/
- 2026年9月26日予定
賃料476,280円
契約面積- 約17坪(56.20m²)
敷金・保証金- 4ヶ月
礼金- 無し
償却等- 償却:無 / 更新料:無
契約期間:2年
※指定保証会社との契約あり
※指定清掃会社との契約あり
所在地- 東京都千代田区飯田橋
構造規模-
鉄骨造
地上9階
所在階- 3階




B1階
343,060円

お問い合わせフォーム
詳細
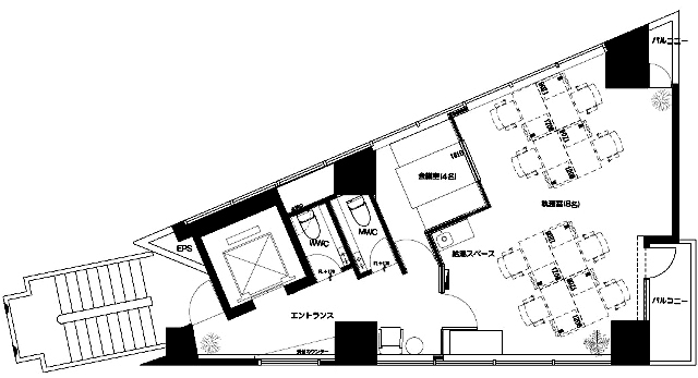
★千代田区飯田橋の立地にデザイナーズセットアップオフィスが誕生
★本物件は中央線・総武線各駅停車【飯田橋駅】東口徒歩3分の立地
★2022年8月にエントランス・専有部の大規模リニューアル工事完了
★貸室内には受付・4名用会議室1部屋を設置済み
★入居後すぐに業務をスタートさせることが可能
★壁一面に足元まで広がる大きな窓があり、明るく開放的な室内空間
★コンパクトな面積ながらも男女別トイレを確保
★スタートアップ企業のお客様に特におすすめの物件
千代田区、飯田橋エリアのセットアップオフィスです。