【千代田区】淡路町_入退去の負担を減らす、神田エリアの合理的なフルセットアップオフィス

問い合わせ番号:36134

1 / 8 ラウンジ

2 / 8 ワークスペース

3 / 8 受付

4 / 8 会議室

5 / 8 オフィス入口

6 / 8 外観

7 / 8 外観

8 / 8 外観

建物画像
建物画像
建物画像
建物画像
建物画像
建物画像
建物画像
建物画像

詳細

★敷金ゼロで原状回復義務なしのフルセットアップオフィス
★4駅7路線が徒歩圏内にあり、アクセス良好

★男女別トイレ・専用バルコニー設置
★快適性と機能性を両立させた室内
★6名用会議室はリフレッシュスペースとしても利用可能
★Wi-Fi設備が整い、入退去時のコストを抑えることが可能

千代田区、神田エリアのオフィスです。

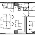
図面

最寄り駅
丸ノ内線 淡路町駅 2分
新宿線 小川町駅 2分
千代田線 新御茶ノ水駅 2分
銀座線 神田駅 5分
山手線 神田駅 7分
チェックポイント
#スタッフおすすめ#セットアップオフィス#デザイナーズ#バルコニー付き#リノベーション済み#会議室付き#敷金なし#礼金なし#駅5分以内
入居時期
2026年4月予定
賃料

697,200

契約面積
約23坪(76.03m²)
敷金・保証金
ASK
礼金
無し
償却等
償却:無 / 更新料:無
契約期間:2年
※契約開始より12ヶ月解約不可
※指定保証会社との契約あり
※指定清掃会社との契約あり
※クリーニング費用ご負担
※原状回復義務なし
(原状変更や破損等を除く)
※Wi-Fiパスワード変更費ご負担
所在地
東京都千代田区神田須田町
構造規模
鉄筋鉄骨コンクリート造
地下1階 地上7階
所在階
5階

Googleマップ

最寄り駅
丸ノ内線 淡路町駅 2分
新宿線 小川町駅 2分
千代田線 新御茶ノ水駅 2分
銀座線 神田駅 5分
山手線 神田駅 7分
チェックポイント
#スタッフおすすめ#セットアップオフィス#デザイナーズ#バルコニー付き#リノベーション済み#会議室付き#敷金なし#礼金なし#駅5分以内
入居時期/
2026年4月予定
賃料

697,200

契約面積
約23坪(76.03m²)
敷金・保証金
ASK
礼金
無し
償却等
償却:無 / 更新料:無
契約期間:2年
※契約開始より12ヶ月解約不可
※指定保証会社との契約あり
※指定清掃会社との契約あり
※クリーニング費用ご負担
※原状回復義務なし
(原状変更や破損等を除く)
※Wi-Fiパスワード変更費ご負担
所在地
東京都千代田区神田須田町
構造規模
鉄筋鉄骨コンクリート造
地下1階 地上7階
所在階
5階

エリアを選択してください(複数選択可)

広さを選択してください(単一選択)

特徴・設備を選択してください(複数選択可)

月額賃料を選択してください(単一選択)

エリア: 未選択
広さ: すべて
特徴: 未選択
賃料: すべて