成約済み 【千代田区】秋葉原_秋葉原徒歩圏、リバーサイドで開放的な什器付きのセットアップオフィス
問い合わせ番号:28969
最寄り駅-
JR線「馬喰町」4分
新宿線「岩本町」6分
日比谷線「小伝馬町」8分
浅草線「東日本橋」9分
JR線・TX線「秋葉原」10分
銀座線「神田」13分
- 入居時期
- 即入居可能
賃料1,621,400円
契約面積- 約73坪(241.32m²)
敷金・保証金- 8ヶ月
礼金- 無し
償却等- 償却:無し / 更新料:無し
所在地- 千代田区東神田1
構造規模-
鉄骨造
地上9階
所在階- 4階







5階
1,870,020円
050-5538-0621
お問い合わせフォーム
詳細
★JR・地下鉄・都営線など複数駅・複数路線の利用が可能
★秋葉原駅や東京駅にも好アクセスで、新幹線・空港利用にも便利
★共用部をリニューアル済み、大通りに面した視認性の高いビル
★エレベーター2基完備で、移動や荷物搬出入もスムーズ
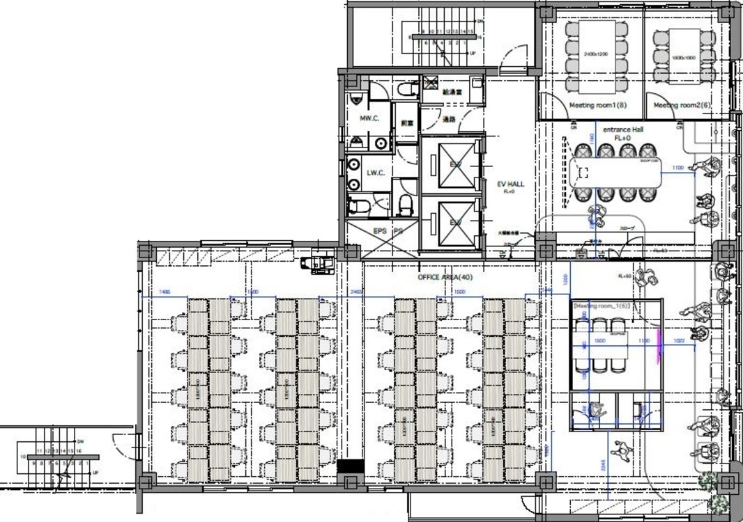
★会議室3室(8名×1、6名×2)・個別ブース2室・ラウンジ設置
★入居者専用の屋上テラスあり(自販機・喫煙所付き)
移転コストや工事の手間を削減し、スピーディーな入居が可能。
屋上テラス付きで、デザイン性と機能性を兼ね備えた、
岩本町、秋葉原エリアの什器付きフルセットアップオフィスです。