成約済み 【千代田区】神保町_古本街とオフィス街が交わる神保町に誕生、100坪超のセットアップオフィス
問い合わせ番号:27425
最寄り駅-
三田線・半蔵門線・新宿線「神保町」5分
東西線「九段下」6分
JR総武線「水道橋」7分
大江戸線・有楽町線・南北線「飯田橋」13分
千代田線「新御茶ノ水」16分
- 入居時期
- 即入居可能
賃料- ASK
契約面積- 約103坪(340.50m²)
敷金・保証金- 0ヶ月
礼金- 無し
償却等- 償却:無し / 更新料:無し
※指定保証会社加入
所在地- 千代田区神田神保町2
構造規模-
鉄筋コンクリート造
地上7階
所在階- 2階




5階
680,000円
050-5538-0621
お問い合わせフォーム
詳細
★複数路線が使えるため都心各所へのアクセス良好
★個別空調は入れ替え済み
★1フロア1テナント仕様でセキュリティも安心
★保証会社利用で敷金不要、入退去コストを大幅に削減可能
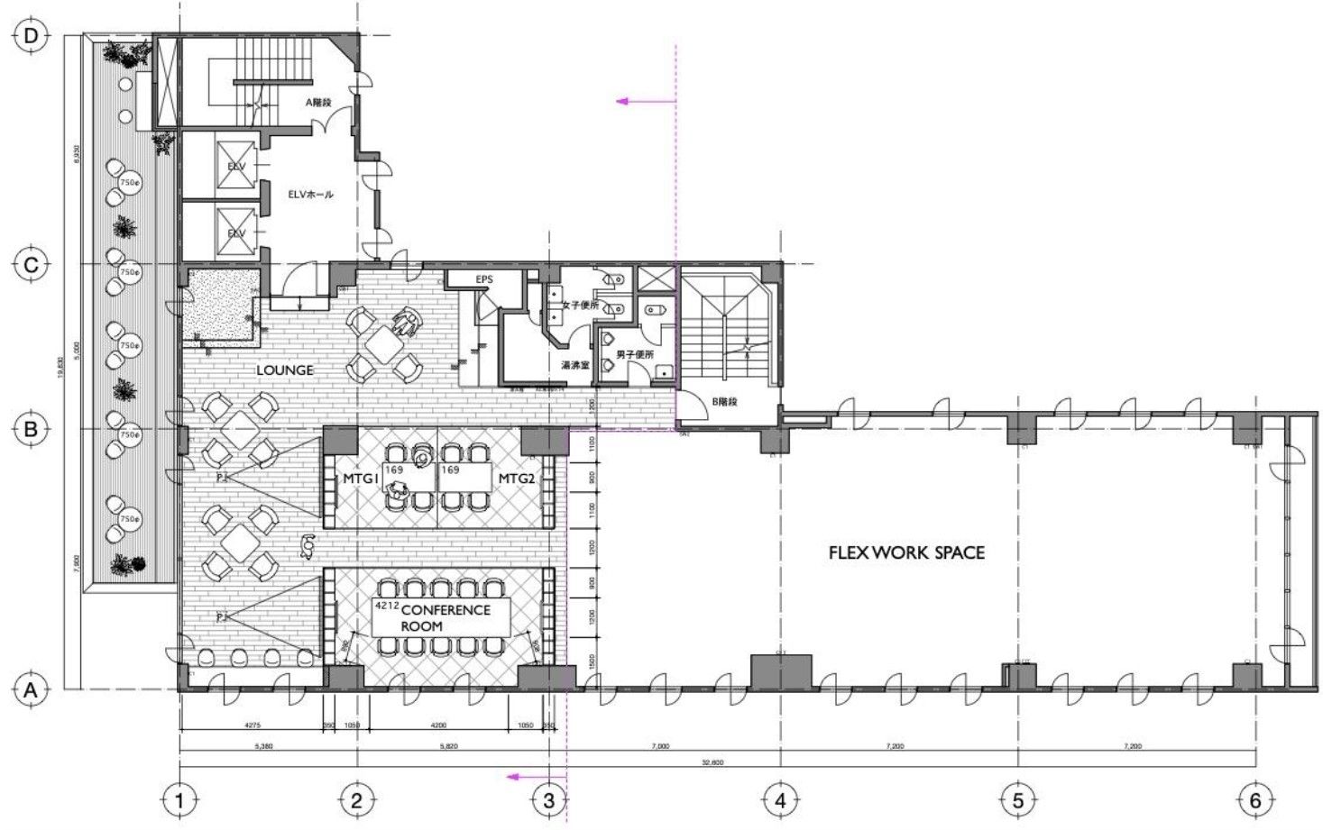
★会議室、男女別トイレ、ラウンジスペース設置
★古書店街としても有名なレトロで活気あるオフィス街エリア
移転の手間、工事費用を抑えスピーディな移転が可能。
成長中企業にもオススメ、敷金0可能な
神保町、九段下、水道橋エリアの希少な100坪超えセットアップオフィスです。