成約済み 【千代田区】秋葉原_飲食店充実エリアで働く、利便性と快適性を備えたセットアップオフィス
問い合わせ番号:27273
最寄り駅-
JR線・銀座線「神田」5分
JR線・日比谷線・TX線「秋葉原」5分
新宿線「岩本町」6分
丸ノ内線「淡路町」8分
千代田線「新御茶ノ水」12分
- 入居時期
- 相談
賃料463,680円
契約面積- 約19坪(62.81m²)
敷金・保証金- 2ヶ月
礼金- 無し
償却等- 償却:1ヶ月 /再契約料:1ヶ月
指定保証会社加入必須
所在地- 千代田区神田東松下町
構造規模-
鉄筋コンクリート造
地下1階 地上7階
所在階- 7階



4階
576,150円
050-5538-0621
お問い合わせフォーム
詳細
★山手線を含む複数路線利用可能な好立地
★大規模リニューアル実施済みのコンパクトセットアップオフィス
★1フロア1テナント仕様で安心のセキュリティ
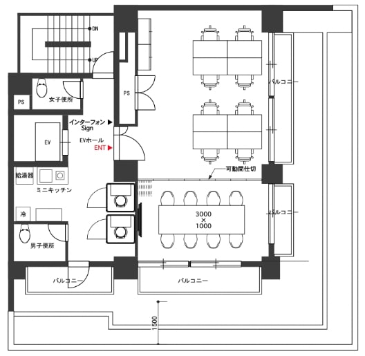
★8名用会議室・フォンブース2室・男女別トイレ設置
★周辺は飲食店が多く、ランチや会食も楽しめるエリア
移転に伴う工事や手間を省き、スピーディーな入居が可能。
入退去コストも明確で、成長企業に最適な
千代田区、神田エリアのコンパクトセットアップオフィスです。