最寄り駅-
JR線「神田」4分
銀座線「神田」4分
JR線「新日本橋」5分
新宿線「岩本町」5分
JR線「秋葉原」9分
日比谷線「秋葉原」9分
TX線「秋葉原」9分
丸ノ内線「淡路町」13分
チェックポイント- #スタッフおすすめ#セットアップオフィス#会議室付き#大型#駅5分以内
- 入居時期
- 即入居可能
賃料581,750円
契約面積- 約23坪(76.03m²)
敷金・保証金- 6ヶ月
礼金- 無し
償却等- 償却:無し / 更新料:無し
所在地- 千代田区神田紺屋町
構造規模-
鉄筋鉄骨コンクリート造
地下1階 地上10階
所在階- 1階
Googleマップ
最寄り駅-
JR線「神田」4分
銀座線「神田」4分
JR線「新日本橋」5分
新宿線「岩本町」5分
JR線「秋葉原」9分
日比谷線「秋葉原」9分
TX線「秋葉原」9分
丸ノ内線「淡路町」13分
チェックポイント- #スタッフおすすめ#セットアップオフィス#会議室付き#大型#駅5分以内
- 入居時期/
- 即入居可能
賃料581,750円
契約面積- 約23坪(76.03m²)
敷金・保証金- 6ヶ月
礼金- 無し
償却等- 償却:無し / 更新料:無し
所在地- 千代田区神田紺屋町
構造規模-
鉄筋鉄骨コンクリート造
地下1階 地上10階
所在階- 1階








4階A室
686,430円

お問い合わせフォーム
詳細
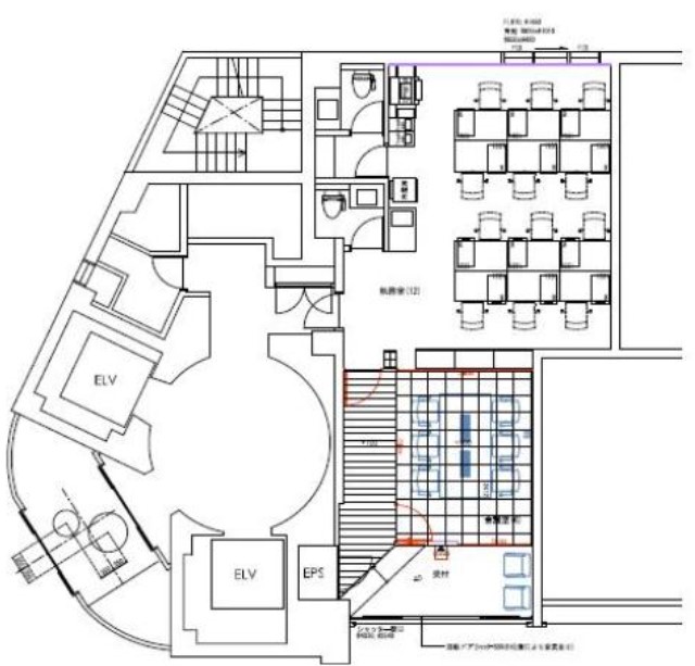
★山手線「神田駅」徒歩4分の好立地セットアップオフィス
★建築物環境性能評価 CASBEE「Sランク」取得ビル
★希少な1階区画、約12席収容可能
★エレベーター待ち不要の専用出入口付き
★受付・会議室造作済み、男女別トイレ完備
★フリーレントキャンペーン実施中
山手線利用の好立地に誕生した、
神田エリアのセットアップオフィスです。