成約済み 【千代田区】末広町_重厚感ある外観×洗練された内装のセットアップオフィス

問い合わせ番号:26465

1 / 8 廊下

2 / 8 ワークスペース

3 / 8 会議室

4 / 8 会議室

5 / 8 男女別トイレ

6 / 8 エントランス

7 / 8 外観

8 / 8 外観

建物画像
建物画像
建物画像
建物画像
建物画像
建物画像
建物画像
建物画像

詳細

★「湯島駅」徒歩2分、「末広町駅」徒歩4分など複数路線利用可能

★エントランス・専有部ともに大規模リニューアル済み

★1フロア1テナント仕様で安心のセキュリティ

★洗練された内装デザインで採用活動や来客対応にも好印象

★内装造作済みのため、工事不要でスピーディーに入居可能

★10名用会議室・男女別トイレ完備

★20名規模に最適なオフィス区画

★駐車場設備あり(詳細はお問い合わせください)

 

移転の手間や工事費用を抑え入居後すぐに業務が可能、
末広町、湯島エリアのセットアップオフィスです。

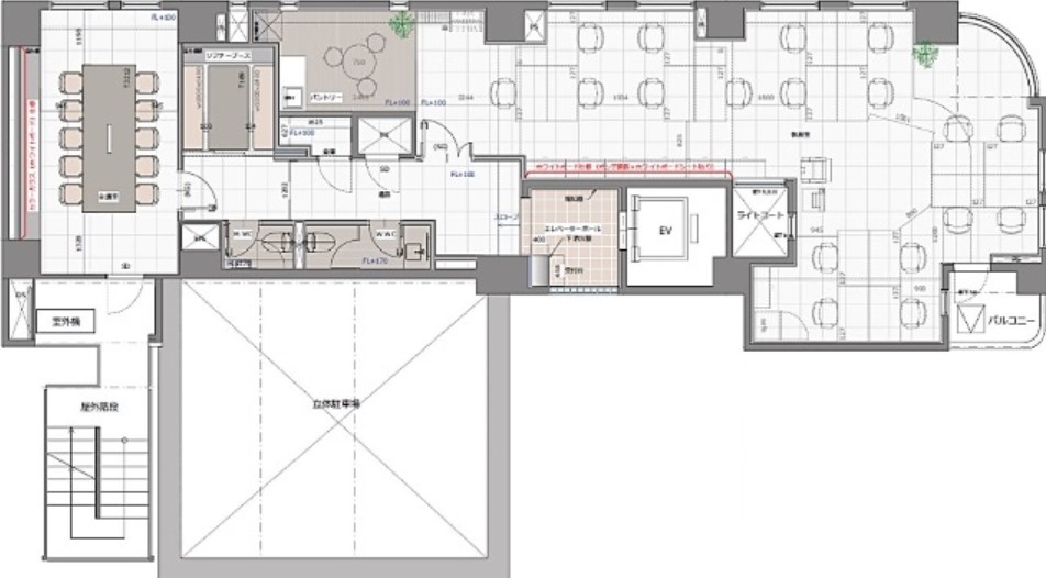
図面

最寄り駅
千代田線「湯島」2分
銀座線「末広町」4分
大江戸線「上野御徒町」7分
JR線「御徒町」8分
JR線・日比谷線・TX線「秋葉原」10分
JR線・丸ノ内線「御茶ノ水」13分
チェックポイント
#セットアップオフィス#居抜きオフィス#デザイナーズ#会議室付き#バルコニー付き#駅5分以内
入居時期
2024年5月末予定
賃料
ASK
契約面積
約42坪(138.84m²)
敷金・保証金
相談
礼金
相談
償却等
相談
所在地
千代田区外神田6
構造規模
鉄筋コンクリート造
地下1階 地上3階
所在階
3階

Googleマップ

最寄り駅
千代田線「湯島」2分
銀座線「末広町」4分
大江戸線「上野御徒町」7分
JR線「御徒町」8分
JR線・日比谷線・TX線「秋葉原」10分
JR線・丸ノ内線「御茶ノ水」13分
チェックポイント
#セットアップオフィス#居抜きオフィス#デザイナーズ#会議室付き#バルコニー付き#駅5分以内
入居時期/
2024年5月末予定
賃料
ASK
契約面積
約42坪(138.84m²)
敷金・保証金
相談
礼金
相談
償却等
相談
所在地
千代田区外神田6
構造規模
鉄筋コンクリート造
地下1階 地上3階
所在階
3階

エリアを選択してください(複数選択可)

広さを選択してください(単一選択)

特徴・設備を選択してください(複数選択可)

月額賃料を選択してください(単一選択)

エリア: 未選択
広さ: すべて
特徴: 未選択
賃料: すべて